Overview

  • Office, Commercial
  • Property Type
  • 1315 to 5265
  • Sf Super Built Up
  • December - 2029 Approx
  • Possession

Description

Palak Estrella is a premium commercial office project under development by Palak Shree Realty LLP in Ahmedabad, Gujarat. Situated on the Iscon-Ambli Road in Ahmedabad West, the project is designed to provide Grade-A office spaces for modern businesses. The single 21-story tower is set within a 1.26-acre area and features contemporary architecture and high-end finishes.

KEY POINTS OF THE PROJECT

  • Location : Iskon Ambli Road
  • Total No. of Blocks : 2
  • Total No. of Units : 336
  • Total No. of Floors : 21
  • Minimum Office Size : 1315 Sf
  • Maximum Office Size : 5265 Sf
  • Floor Plate :17640 Sf (A Block)
  • Floor Plate :14650 Sf (B Block)
  • Floor Plate : 32290 Sf (A+B Block)
  • Each Floor 7 Units/ 6 lifts : A Block
  • Each Floor 9 Units/ 6 lifts : B Block
  • 4 level Basement
  • Ground Floor : 17 ft height with no retails space
  • First Floor : Dedicated for the amenities
  • 2nd to 21st Floor : Typical Floors
  • 1st to 4th Floor : 10 ft Height
  • 5th to 10th Floor : 11 Ft Height
  • 11th to 14th Floor : 12 Ft Height
  • 15th to 21st Floor : 11 Ft Height
  • IT Companies and Co- Workspace not allowed in this building
  • PROJECT RERA NO. : PR/GJ/AHMEDABAD/AHMEDABAD CITY/Ahmedabad Municipal Corporation/CAA13285/080424/310329

Brochure

palak-estrella

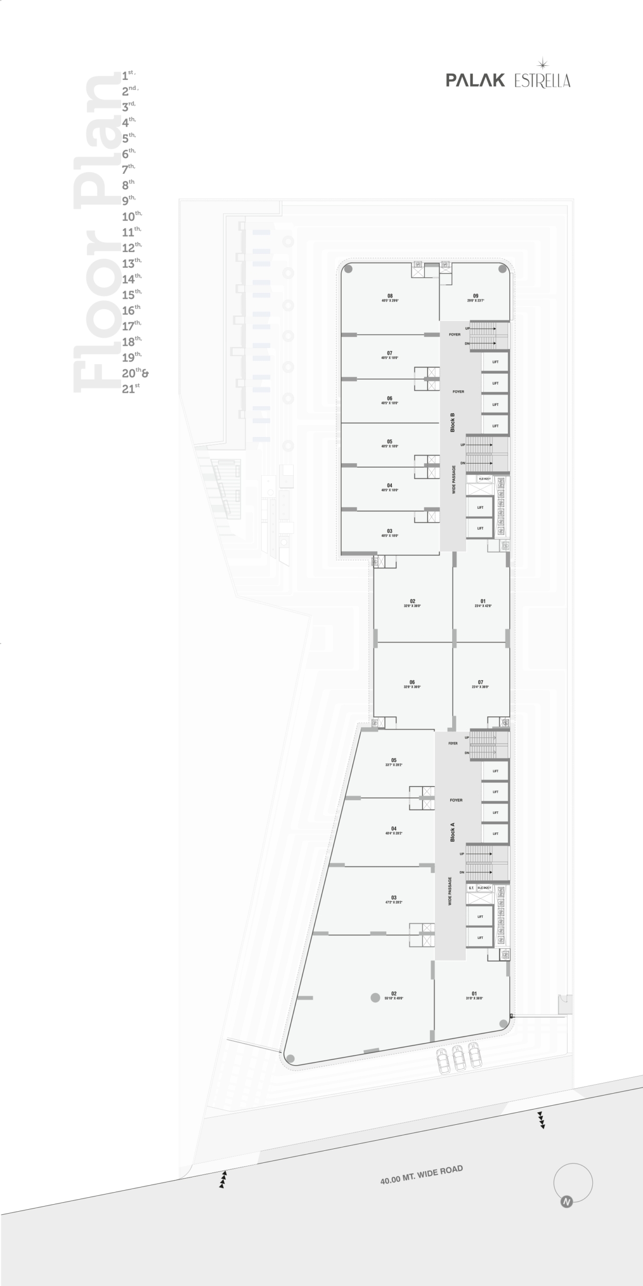
Floor Plans

image

Description:

image

Description:

image

Description:

image

Description:

Site Visit

Tour Type

Contact Information

View Listings
Futurecity Realestate

Enquire About This Property

Similar Properties

Neither Futurecity Real Estate nor third parties provide any warranty or guarantee as to the accuracy, timeliness, performance, completeness or suitability of the information and materials found or offered on this website for any particular purpose. You acknowledge that such information and materials may contain inaccuracies or errors and we expressly exclude liability for any such inaccuracies or errors to the fullest extent permitted by law. Users are strongly advised to exercise independent due diligence from other sources before relying upon any information or material published on website before taking any kind of decisions with respect to the listings of properties/projects and including but not limited to any other services provided on the website.

Compare listings

Compare
Futurecity Realestate
  • Futurecity Realestate